大连兆兴船舶风管有限公司
首页
企业简介
产品大全
联系我们
企业信息
在线留言
PRODUCT
产品大全
泰兴市亚杰船舶设备厂 专业风管系统解决方案,提升船舶设备性能
查看详情
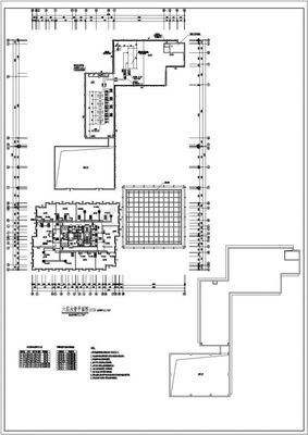
河南某地区六层住宅楼风管平面暖通设计图纸解析与船舶风管应用借鉴
查看详情
美商海盗船Crystal 680X机箱评测
查看详情
【舱口盖,通风帽,天窗,螺旋风管,船用泵阀系列产品】价格,厂家,图片,锚泊设备,泰兴市虹亿船舶设备-
查看详情
佛山市高明区大风通风设备厂
查看详情
【菌型通风筒】菌型通风筒价格_优质菌型通风筒批发/采购商机 -
查看详情
船舶空调5
查看详情
体验海盗船LCD冷头-Z690 Hero+TUF Gaming 3070Ti+迎广515装机记
查看详情
船舶舾装件,船用泵阀系列产品矩形风管,防火风阀_供应产品_ 泰兴市虹亿船舶设备
查看详情
船舶设备
查看详情
徽 常稳 安徽经济半年观察
查看详情
全球首艘开工
查看详情
镁晶耐火风管二代产品 金属风管耐火包覆系统
查看详情
扬州海江仪表科技开发公司 主营 仪器 船用电子产品
查看详情
这座不输厦门的山海花城,人少景美还拥有古老神奇的世界文化遗产
查看详情
2019塑料制品价格 报价 塑料制品批发 化工网
查看详情
船用布风器 静压箱 空调末端 双风道船舶 无导流板低噪音 非标件 - 爱
查看详情
技术服务 中国水产科学研究院渔业机械仪器研究所网站
查看详情
镀锌异径管 不锈钢大小头
查看详情
德州新品共板法兰风管出售 共板供应商 武城县鲁权屯国军通风空调设备厂
查看详情
如若转载,请注明出处:http://www.shipduct.com/product/list-4.html
第一页
上一页
2
3
4
5
6
下一页